Search

Leave a Message

Thank you for your message. I will be in touch with you shortly.

Explore Properties

Property Description

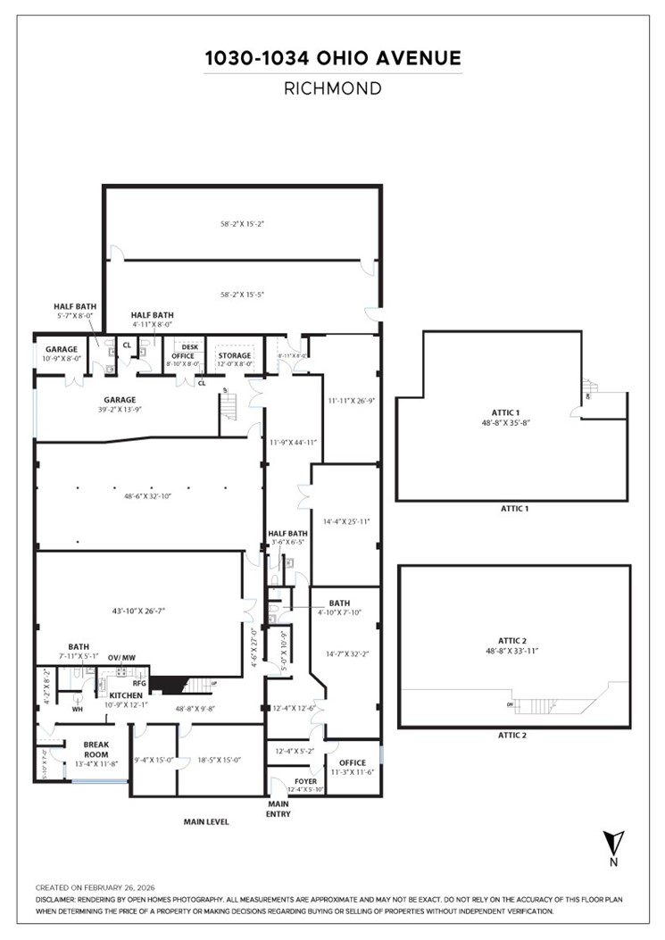
Located in Richmond's Green Zone, this +-7,425 sq ft commercial warehouse is a well equipped and versatile industrial property well-suited for operators, investors, or owner-users.

The main level features a welcoming entry foyer, multiple private offices, a break room, and a full kitchen -- supporting both client-facing and day-to-day operational needs. The building is equipped with three half baths and two full baths, accommodating a sizable workforce.
At the core of the property are expansive warehouse and dual garage bays, ideal for cultivation, manufacturing, or distribution. Two upper-level attic spaces provide additional square footage for storage or potential conversion.

Situated on Ohio Avenue with convenient access to Interstate 580, the property connects operators to the broader East Bay, San Francisco, and beyond.

Overview

Property Status
For Sale
Lot Size
7,500 Sq.Ft.
MLS ID
AR26019935
Property Type
Commercial
Year Built
1957

Features & Amenities

Total Area
7,425 Sq.Ft.
Stories
1
Water Source
Public
Lot Features
0-1 Unit/Acre, Corner Lot, Rectangular Lot, Street Level
Laundry Room
None
Sales Price
$1,300,000

Downloads

10301034 Ohio Avenue

Schedule a Tour

I would love to help you see this beautiful home! As a full-service agent, I can help you tour. Please submit an offer, and answer questions about the buying process.

Thank you

for your interest in 10301034 Ohio Avenue, Richmond, CA 94804

10301034 Ohio Avenue
Navigate

Mortgage Calculator

Estimate your monthly mortgage payment, including the principal and interest, property taxes, and HOA. Adjust the values to generate a more accurate rate.
$0,000 Your Payment 20 15 65
$0,000 Your Payment

Follow Us On Instagram